Völklingen:
Renovierungsbedürftiges Reihenmittelhaus in VK
Objekt-Nr.: 13





Eingangsbereich/Flur

Ehemaliges Ladenlokal mit direktem Zugang von der Straße EG

Ehemaliges Ladenlokal mit direktem Zugang von der Straße EG

Küche EG

Treppenaufgang

Zimmer OG

Zimmer OG

Zimmer OG

Zimmer OG

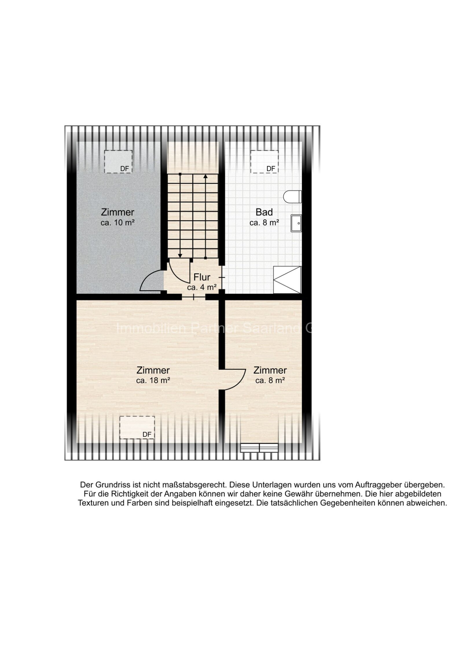
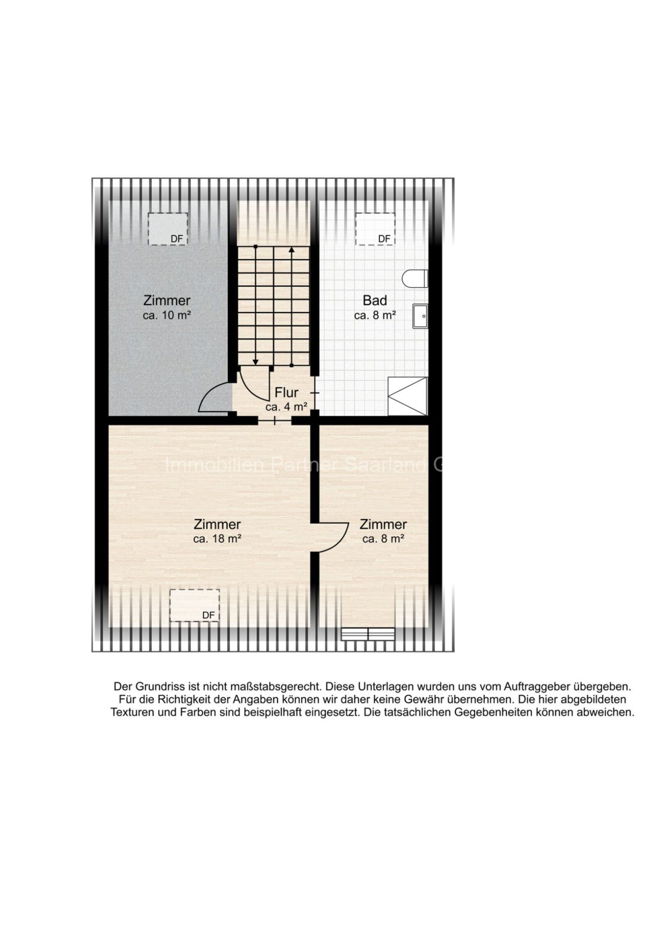
Zimmer DG

Zimmer DG

Badezimmer DG

Anbau Partyraum/Nutzraum

Garage mit Zugang zum Haus und Durchfahrt Terrasse/Garten

Rückansicht

Garten

Garten

Erdgeschoss

Obergeschoss

Dachgeschoss
























Preis:
149.000 €
Wohnfläche ca.:
158 m²
Grundstück ca.:
645 m²
Zimmeranzahl:
9
Diese Immobilie wurde im Jahr 1907 auf einem 645 m² großen Grundstück errichtet und umfasst ca. 158 m² Wohnfläche. Im Erdgeschoss (ca. 40m²) erreichen Sie über den Flur die zwei ehemaligen Ladenlokale, in denen damals eine Bäckerei betrieben wurde, sowie die Küche und ein WC. Von der Garage haben Sie ebenfalls Zugang zu den Erdgeschossflächen. Hinter dem Wohnhaus dürfen sich die neuen Eigentümer über einen Partyraum freuen, mit dem ehemaligen, angrenzenden Backhaus. Im Obergeschoss (ca. 70 m²) gelangen Sie über den Flur in vier weitere Zimmer. Ein kleines WC ist zudem vorhanden. Die Dachgeschossfläche (ca. 48 m²) vervollständigt die Wohnfläche mit drei zusätzlichen Zimmern und einem Bad. Im Kellergeschoss befinden sich ausreichend Lager -und Abstellflächen.Technische Daten: -2-fach-verglaste Holzfenster aus 1989-Dach (nicht gedämmt) aus 1988-Fernwärme-Heizung aus 1980 (die Steuerung wurde in 2006 erneuert).-Strom -und Wasserleitungen sind aus den 90er Jahren, sowie die Heizungsleitungen aus 1980.Der Zustand der Immobilie darf als sehr renovierungsbedürftig bezeichnet werden.Sie sind auf der Suche nach einem Wohnhaus mit ausreichend Zimmeranzahl und Wohnfläche, können mit Handwerkergeschick entsprechende Handwerkerkosten sparen, um sich ein neues zu Hause zu schaffen?Dann sollten Sie mit uns einen Besichtigungstermin vereinbaren!
Völklingen ist durch die Bundesautobahn 620 (Saarlouis–Saarbrücken) und die Bundesstraße 51 an das überregionale Straßennetz angebunden. Die im Herzen des Saarland liegende Stadt gehört dem Regionalverband Saarbrücken an. Sie ist nach Saarbrücken, Neunkirchen und Homburg die viertgrößte Stadt des Saarlands und hat den Status einer Mittelstadt mit ca. 40.000 Einwohnern. Die bekannte SHG Klinik, Schulen, Kindergarten sowie Einkaufsmöglichkeiten liegen in unmittelbarer Nähe. Weithin bekannt ist Völklingen durch das Weltkulturerbe Völklinger Hütte. Die Völklinger Hütte ist weltweit das einzige Eisenwerk aus der Blütezeit der Industrialisierung, welches vollständig erhalten ist. Seit 1994 zählt es zum UNESCO -Weltkulturerbe.
Haustyp: Reihenmittelhaus
Provisionspflichtig: ja
Provision: 3,57 %
Anzahl Badezimmer: 1
Terrasse: 1
Gäste-WC: ja
Garten: ja
Keller: voll unterkellert
Anzahl der Parkflächen: 1 x Garage
Baujahr: 1907
Verfügbar ab: nach Vereinbarung
Bodenbelag: Fliesen, Laminat
Energieklasse: G
Heizung: Fernwärme
Energieausweistyp: Bedarfsausweis - gültig vom 30.11.2022
Energieeffizienz-Klasse: G
Baujahr laut Energieausweis: 1907
Der Makler-Vertrag mit uns und/oder unserem Beauftragten kommt durch die Beauftragung der Maklertätigkeit in Textform (z.B. E-Mail mit Bestätigung der gewollten Inanspruchnahme) zustande. Die Höhe der Courtage richtet sich nach den ab dem 23.12.2020 in Kraft getretenen gesetzlichen Regelungen zur Teilung der Maklercourtage. Hiernach wird die Courtage regelmäßig für beide Parteien (Eigentümer und Käufer) jeweils in Höhe von 3 % zuzüglich Umsatzsteuer in jeweils geltender Höhe, derzeit also insgesamt 3,57 % des Kaufpreises einschließlich Umsatzsteuer bei notariellem Vertragsabschluss verdient und fällig. Die Höhe der Bruttocourtage unterliegt einer Anpassung bei Steuersatzänderung. Immobilien-Partner-Saarland GmbH und ggf. deren Beauftragte erhalten einen unmittelbaren Zahlungsanspruch gegenüber dem Käufer (Vertrag zugunsten Dritter, § 328 BGB). Grunderwerbssteuer, Notar- und Gerichtskosten trägt der Käufer.
Die von uns gemachten Informationen beruhen auf Angaben des Verkäufers bzw. der Verkäuferin. Für die Richtigkeit und Vollständigkeit der Angaben kann keine Gewähr bzw. Haftung übernommen werden. Ein Zwischenverkauf und Irrtümer sind vorbehalten.
Wir weisen auf unsere Allgemeinen Geschäftsbedingungen hin. Durch weitere Inanspruchnahme unserer Leistungen erklären Sie die Kenntnis und Ihr Einverständnis.
Das könnte Ihnen auch gefallen
Reihenmittelhaus mit 2 Wohneinheiten in Toplage
Freistehendes Einfamilienhaus
Einfamilienhaus in Ludweiler




























































































