Saarbrücken:
Reihenmittelhaus mit 2 Wohneinheiten in Toplage
Objekt-Nr.: 2

Straßenansicht

Garten

Rückansicht

Wohnbereich mit Zugang zur Terrasse und Garten EG

Eingangsbereich

Diele EG

Wohn-Essbereich EG

Wohnbereich mit Zugang zur Terrasse und Garten EG

Terrasse

Essbereich EG

Zimmer mit Zugang zur Terrasse und Garten EG

Zimmer EG

Küche EG

Badezimmer EG

WC EG

Treppenaufgang OG

Diele OG

Wohn-Essbereich OG

Wohnbereich mit Zugang zum Balkon

Balkon

Essbereich OG

Zimmer mit Zugang zum Balkon OG

Zimmer mit Zugang zum Balkon OG

Küche OG

Badezimmer OG

Terrasse/Garten

Garten

Garten

Garten

Rückansicht/Garten

Erdgeschoss

Obergeschoss

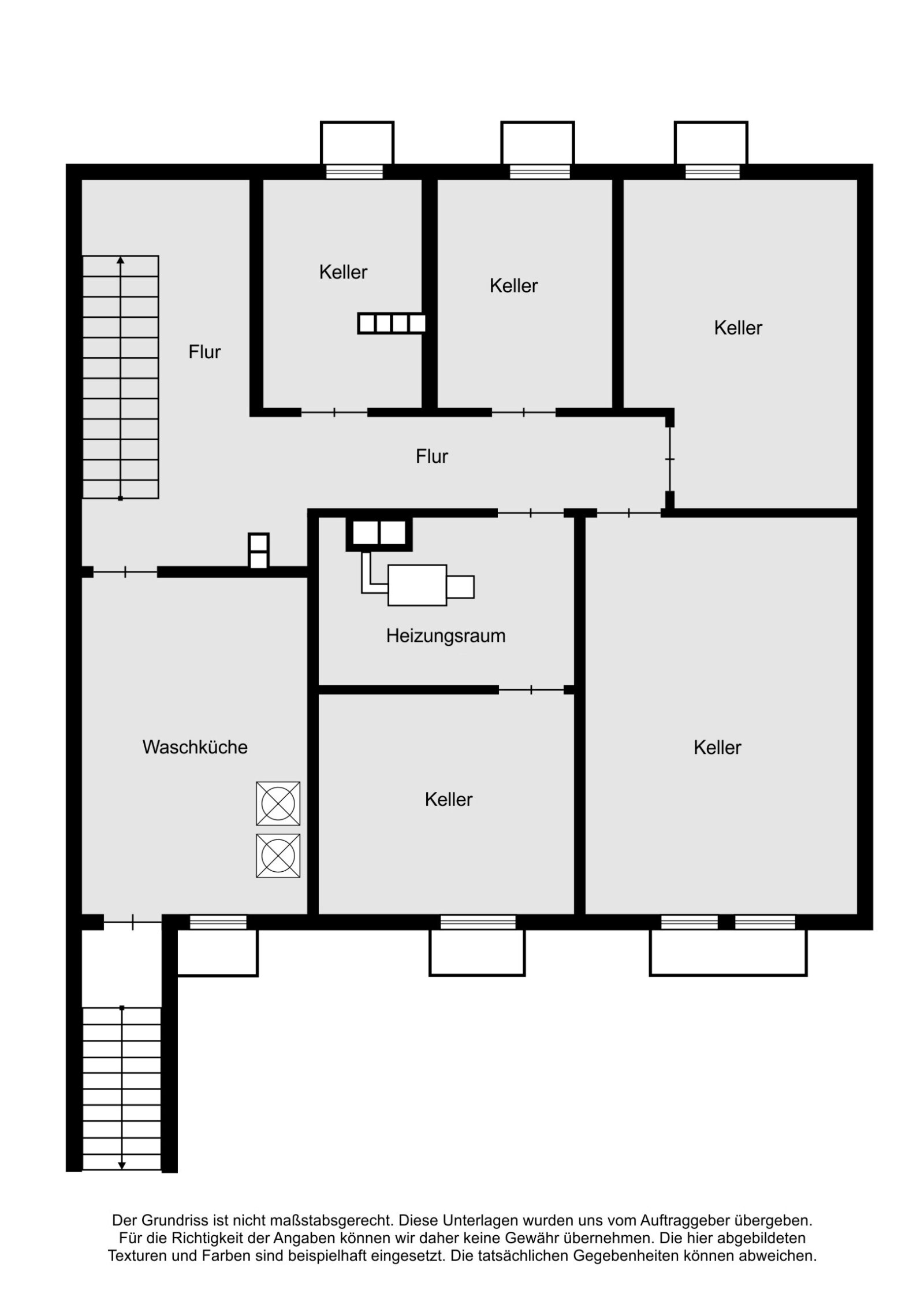
Kellergeschoss

































Preis:
395.000 €
Wohnfläche ca.:
186 m²
Grundstück ca.:
458 m²
Zimmeranzahl:
6
Zum Verkauf steht ein gepflegtes Zweifamilienhaus aus dem Baujahr 1966 auf einem insgesamt 458 m² großen Grundstück, bestehend aus einem Hausgrundstück mit 424 m² sowie einem separaten Garagengrundstück mit 34 m². Die Gesamtwohnfläche von rund 186 m² verteilt sich auf zwei nahezu gleich große Wohneinheiten, die sowohl zur Eigennutzung als auch zur Vermietung oder als Mehrgenerationenhaus ideal geeignet sind. Im Erdgeschoss befindet sich eine helle und großzügig geschnittene Wohnung mit zwei Zimmern, von denen eines direkten Zugang zur Terrasse und in den Garten bietet. Das große Wohn- und Esszimmer verfügt über einen gemütlichen Kamin sowie ebenfalls über einen Zugang zur Terrasse und in den gepflegten Garten. Eine separate Küche, ein Badezimmer sowie ein WC ergänzen den durchdachten Grundriss.…
Die Wohnung im Obergeschoss ist ähnlich aufgeteilt und bietet zwei Zimmer, ein großzügiges Wohn- und Esszimmer mit Balkonzugang von allen drei Räumen, eine Küche, ein Badezimmer sowie einen Abstellraum mit Anschlussmöglichkeit für ein Gäste-WC.
Das Haus ist vollständig unterkellert und verfügt über eine Waschküche mit direktem Zugang zum Garten, einen Heizungsraum sowie ausreichend Stauraum und Abstellflächen.
Technische Details & Ausstattung:
• Heizung: Gasheizung aus 2015
• Fenster (Iso-Doppelverglasung, Kunststoff):
o EG: 2007 o OG: 2010 o KG: 2021
• Dach: Flachdach, erneuert 2009
• Garage & Stellplätze:
o Betonfertiggarage an der Straße
o 2 Stellplätze vor dem Haus
o Wallbox direkt neben dem Hauseingang
• Renovierungen & Ausstattung:
o Elektrische Rollläden
o Eingangstür neu 2003
o Badezimmer OG neu 2010
o Kellertür erneuert 2012
Die Immobilie überzeugt durch ihre solide Bauweise, die praktische Raumaufteilung und das vielseitige Nutzungspotenzial. Der schöne Garten, der Balkon und der Kamin schaffen ein angenehmes Wohnambiente, das sowohl Familien als auch Kapitalanleger anspricht.
Interesse? Dann vereinbaren Sie mit uns einen Besichtigungstermin!
Die Immobilie befindet sich im beliebten und gepflegten Wohngebiet Sonnhügel in Saarbrücken. Die Umgebung zeichnet sich durch eine ruhige, familienfreundliche Atmosphäre aus und ist geprägt von Einfamilienhaus- und Reihenhausbebauung.…
Die Wohngegend besticht durch hochwertige Einfamilienhäuser, grüne Vorgärten und eine angenehme Nachbarschaftsatmosphäre. Alle Einrichtungen des täglichen Bedarfs wie Supermärkte, Bäckereien, Schulen, Kindergärten und medizinische Versorgung sind schnell erreichbar. Gleichzeitig profitieren Sie von einer ausgezeichneten Anbindung an den öffentlichen Nahverkehr und an die Innenstadt, sodass städtische Angebote und Freizeitmöglichkeiten in wenigen Minuten erreichbar sind.
Für Naturliebhaber und Sportbegeisterte bietet die Umgebung zahlreiche Parks und Grünflächen, die zum Spazieren, Joggen oder Entspannen einladen. Die Kombination aus Ruhe, Natur und städtischer Infrastruktur macht diese Lage besonders attraktiv für Familien, Paare und alle, die ein hochwertiges Wohnumfeld in Saarbrücken suchen.
Haustyp: Reihenmittelhaus
Provisionspflichtig: ja
Provision: 3,57%
Küche: Einbauküche
Bad: Dusche
Terrasse: 1
Keller: voll unterkellert
Anzahl der Parkflächen: 2 x Außenstellplatz; 1 x Garage
Baujahr: 1966
Verfügbar ab: nach Vereinbarung
Bodenbelag: Fliesen, Laminat, Parkett, PVC
Energieklasse: F
Befeuerungsart: Gas
Energieausweistyp: Bedarfsausweis - gültig vom 13.10.2025 bis 13.10.2035
Energieeffizienz-Klasse: F
Baujahr laut Energieausweis: 1966
Der Makler-Vertrag mit uns und/oder unserem Beauftragten kommt durch die Beauftragung der Maklertätigkeit in Textform (z.B. E-Mail mit Bestätigung der gewollten Inanspruchnahme) zustande. Die Höhe der Courtage richtet sich nach den ab dem 23.12.2020 in Kraft getretenen gesetzlichen Regelungen zur Teilung der Maklercourtage. Hiernach wird die Courtage regelmäßig für beide Parteien (Eigentümer und Käufer) jeweils in Höhe von 3 % zuzüglich Umsatzsteuer in jeweils geltender Höhe, derzeit also insgesamt 3,57 % des Kaufpreises einschließlich Umsatzsteuer bei notariellem Vertragsabschluss verdient und fällig. Die Höhe der Bruttocourtage unterliegt einer Anpassung bei Steuersatzänderung. Immobilien-Partner-Saarland GmbH und ggf. deren Beauftragte erhalten einen unmittelbaren Zahlungsanspruch gegenüber dem Käufer (Vertrag zugunsten Dritter, § 328 BGB). Grunderwerbssteuer, Notar- und Gerichtskosten trägt der Käufer.
Die von uns gemachten Informationen beruhen auf Angaben des Verkäufers bzw. der Verkäuferin. Für die Richtigkeit und Vollständigkeit der Angaben kann keine Gewähr bzw. Haftung übernommen werden. Ein Zwischenverkauf und Irrtümer sind vorbehalten.
Wir weisen auf unsere Allgemeinen Geschäftsbedingungen hin. Durch weitere Inanspruchnahme unserer Leistungen erklären Sie die Kenntnis und Ihr Einverständnis.
Das könnte Ihnen auch gefallen
Immobilien-Partner-Saarland GmbH
Frau Claudia Podevin





































































